Expressions of Interest

22 Roper Road Blue Haven NSW 2262

3
2
1
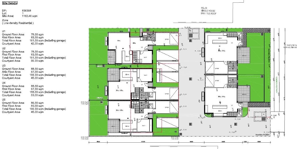
1163 m2
House

DA & CC Approved | Contributions Paid | Ready to Build - EOI Sale

To enquire, please email or call 1300 815 051 and enter code 3276

An exceptional opportunity for a seasoned builder or strategic investor to secure a fully approved, shovel-ready project with all the groundwork already completed.

Positioned directly opposite a major retail and medical precinct, this site is underpinned by strong tenant demand, practical build logistics, and clear end-value fundamentals.

Approved for five architecturally designed dwellings, each configured with 4 bedrooms, 3 bathrooms, and 1 car space, this project allows you to step straight into execution without delay.

Key Highlights:

-DA & CC Approved – no planning risk
-All contributions and fees paid (approx. $115,000)
-Notice of Commencement (NOC) issued – build immediately
-Stamped plans and full documentation available
-Existing 3-bedroom dwelling returning $630 per week (short-term lease in place)
-High-exposure location opposite Aldi and medical centre
-Designed product aligned with strong resale and rental demand

For the builder, this is about efficiency, no downtime, no approvals, just construction.

For the strategic investor, this is about control, secure the site, stage the build, or deliver and hold a high-performing multi-income asset.

This is a project where the risk has been reduced and the pathway is clear.

Step in, take control, and execute.

Please note: Open inspections may not be scheduled; private viewings are available by appointment.

Disclaimer: Information has been sourced using third parties. We do not guarantee accuracy, accept no liability, and advise interested parties to conduct their own investigations. Images are indicative only.

To enquire, please email or call 1300 815 051 and enter code 3276

Other properties in ‘Blue Haven’

VIEW ALL LISTINGS
SOLD
Blue Haven NSW
Welcome to your new home in Blue Haven!
4 Bancroft Close Blue Haven NSW 2262
4
1
1
House
7 months, 2 weeks ago
Message Schedule Call Make Offer