$750,000 - $770,000

216 Peter Street Berserker QLD 4701

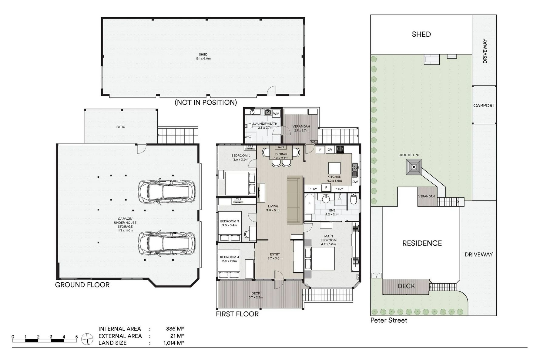
4
2
6
1013 m2
House

Privacy, Security & Location

Vendors ready to transition into their next adventure.

This house feels like a home. From the moment you close the front electric gates the property envelopes you in warmth and calmness. Luscious green grass, evergreen trees and the beauty of no neighbours peaking over your fence makes this home a retreat.

Located on a 1013sqm block and situated in a part of Berserker that time has stood still, you feel like you are miles away from the hussle and bussle yet really only minutes from Rockhampton's CBD.

If parking is a priority whether its a tradie with utes and trailers or all your adult kids have cars, the driveway can accommodate it all. Under the house has ample storage, double electric roller doors and room for 2 cars locked away plus ample more storage for a gym or 2nd living area for the kids. The rear has a powered 4 bay shed with 3 rollers doors and water.

Fully reticulated lawns set on automatic watering system. Separate single high bay carport for your caravan or boat. Additional 2nd front gate access for trailer parking down the East side of the house. Security camera system and security screens on windows.

Spend your mornings having a coffee or evenings with a cold one on the front balcony overlooking the beauty of Mt Archer. Let the kids run wild in the back yard with plenty of room for a pool if you wish.

Inside the home you will find 3 bedrooms with air-conditioning and a front 4th bedroom/office. A generous country kitchen and combined living/dining area with new split system air conditioning. The high set ceilings and windows all around allow for ample air flow and light. Polished timber floors brings the country to the inside.

Smoke alarms have been serviced and compliant for sale. New roof recently completed.
Building and pest report has been conducted and available to genuine buyers to review.

This property is offered for sale with much thought and consideration. This has been our home and while life is now taking us in a different direction we would love for another family to enjoy this home too.

Inspections available by appointment.

Other properties in ‘Berserker’

VIEW ALL LISTINGS
Berserker QLD
Berserker investment property or call it your own home!
94 Sharples Street Berserker QLD 4701
2
1
1
House
3 years, 5 months ago
Berserker QLD
Brand New Home in Berserker
26 Armstrong Street Berserker QLD 4701
3
2
1
House