$1,975,000

51 SEA ESPLANADE BURNETT HEADS QLD 4670

5
5
2
1011 m2
House

Spacious home in stunning beachfront location

To enquire, please email or call 1300 815 051 and enter code 6635

Situated on Sea Esplanade, in the quiet seaside suburb of Burnett Heads, this lovely family home has been built to optimise the 180 degree ocean-front views at this spectacular location. Walk across the road and you will be dipping your toes in the waves at Oaks Beach, where the Turtles nest in summer. Direct access to the Turtle Trail offers cycling and walking up to the marina or all the way down into Bargara and beyond, passing through the Mon Repos Conservation park with its beautiful wide beach and renowned Turtle Centre on the way.
Local amenties including cafes, an IGA, post office, pub ,bakery and pharmacy.

Accommodation comprises, on the first floor, a spacious open-plan living area and kitchen , three kingsize bedrooms with en-suites and large walk-in robes and a further large room that works equally well as either a media/rumpus room or 4th bedroom. Beautiful Tasmanian Oak flooring provides warm tones throughout the first floor.

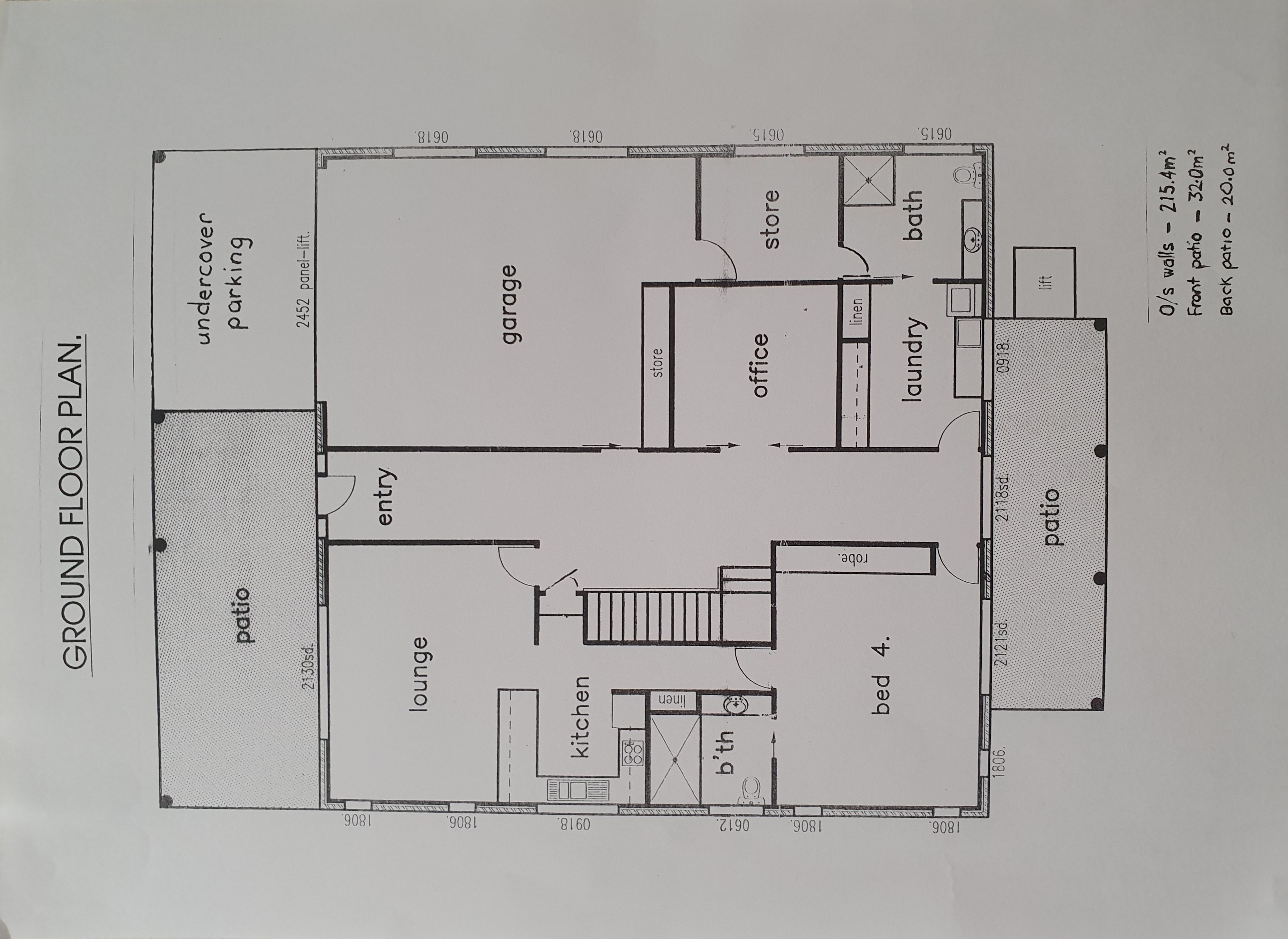
The ground floor is fully tiled and offers potential dual living, with a second kitchen/living area and ensuite bedroom with split system air conditioning and separate hot water tank. The downstairs is completed with a spacious office, large laundry, 5th bathroom and a storeroom that connects to the double internal garage.
The property is fully fenced and gated , with side access to rear hardstanding, two separate sheds and a covered outdoor area.

To enjoy the best of ocean front living dont hesitate to come and inspect the many features of this well appointed, versatile and expansive home.

To enquire, please email or call 1300 815 051 and enter code 6635

Other properties in ‘BURNETT HEADS’

VIEW ALL LISTINGS
SOLD
BURNETT HEADS QLD
Awesome view! Brilliant oceanfront house!
113 SEA ESPLANADE BURNETT HEADS QLD 4670
4
2
3
House
3 years, 3 months ago
SOLD
BURNETT HEADS QLD
An immaculate single-storey house with open views.
19 BEACHMERE STREET BURNETT HEADS QLD 4670
4
2
1
House
3 years, 2 months ago
BURNETT HEADS QLD
ENTERTAINER’S DELIGHT WITH ENDLESS OCEAN VIEWS
Address available on request
4
3
2
House
2 years, 9 months ago
Message Schedule Call Make Offer