Offers Over $1,740,000

26 Orallo Street Lota QLD 4179

4
3
1
405 m2
House

Near-New Architectural Bayside Home with Ocean Glimpses

To enquire, please email or call 1300 815 051 and enter code 6702

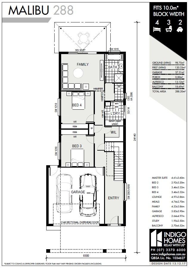
Indigo Homes – Malibu 288

Designed with elevated living in mind, this architecturally designed Indigo Homes “Malibu 288” delivers space, privacy and a genuine bayside outlook in one of Lota’s most desirable coastal pockets.

Positioned to maximise aspect and elevation, the upper-level living and decked alfresco area capture elevated bay views down the street toward the water, along with cooling sea breezes and beautiful natural light.

Approximately two years old, this near-new residence offers modern construction standards, generous proportions and a flexible layout ideally suited to contemporary family living.

The thoughtfully designed floorplan features four spacious bedrooms, all with built-in robes, including a well-separated master suite. Three bathrooms provide everyday convenience, while multiple living areas across both levels create space for both entertaining and quiet retreat. A dedicated study/home office supports today’s work-from-home lifestyle.

At the heart of the home, the contemporary kitchen showcases quality appliances, excellent storage and seamless connection to the open-plan living and dining areas. Ducted reverse-cycle air conditioning throughout ensures year-round comfort.

Upstairs living opens to the front balcony where elevated bay views and refreshing breezes create a relaxed coastal atmosphere — ideal for entertaining or unwinding while enjoying the outlook toward the water.

Downstairs offers a private zone perfect for older teenagers, guests or extended family, providing flexibility and separation when needed.

The fully fenced, low-maintenance yard offers secure space for children or pets, while the remote double garage and additional off-street parking add practical everyday convenience.

Additional Features:

• Near-new construction (approx. 2 years old)
• Elevated bay views from the front balcony
• Ducted reverse-cycle air conditioning throughout
• Multiple living zones across both levels
• Dedicated study/home office
• Built-in robes to all bedrooms
• Secure double garage with remote access
• Fully fenced, easy-care block

Currently unlandscaped at the rear, the property presents a rare blank canvas to create your own private outdoor oasis — with ample space to install a pool and design the ultimate entertaining area.

Offering a standout opportunity to secure a near-new, modern home with genuine bayside outlooks in tightly held Lota, this impressive residence combines lifestyle, comfort and long-term value.

Genuine enquiries welcome. Private inspections by appointment.

To enquire, please email or call 1300 815 051 and enter code 6702

Message Schedule Call Make Offer