SOLD

48 Nicklin Way Parrearra QLD 4575

4
2
0
546 m2
House

Plenty of options, walk to beach and mall!

A rare and versatile dual-building property just 500 meters from Kawana Shopping World and 550 meters from beach access, offering lifestyle, income, and business potential all in one.

Whether you’re looking to live in one and rent the other, accommodate extended family, operate a home-based business, or maximise returns through dual leasing or Airbnb, this property presents an exceptional opportunity.

Both buildings are fully fenced, and separated, ensuring privacy, with separate power meters, individual outdoor areas and parking.

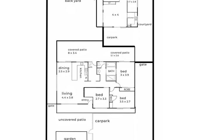
Building 1 – Main Residence:
• 3 bedrooms
• 1 bathroom
• Laundry / pantry
• Open-plan kitchen, dining & lounge
• Well-appointed kitchen with oven, dishwasher, steam oven & cooktop
• Large outdoor entertaining area
• Private front and backyard
• Room for a pool
• 2 parking spaces

Building 2 :
• 1 large room plus 1 office (originally 3 clinic rooms –reconfigured to suit tenants)
• Bathroom with washing machine fittings
• Kitchen with cooktop and oven
• Lounge or reception area
• Courtyard on three sides
• Shed
• Parking space
• Large secure front gate.

Previously operated as a health clinic, Building 2 offers versatile use options and would suit a wide range of professional or home-business applications and with main road exposure, this is an excellent location for a business.

Building 2 is currently leased to a long-term tenant (lease expires May 2026).
Building 1 was previously rented, with a combined total rental income of $1,090 per week (building 1 due for a rent increase and building 2 will be due for a rent increase when the lease expires). Building 1 is currently owner occupied.

Council rates are $1487 per half year, there are no strata or body corporate fees.

The land size is 546m2.

Inspections are by appointment.

Close to shops, the beach, parks, schools and the bus stop- only 70 meters away this property will have strong appeal for investors, extended families, or owner-occupiers seeking flexibility.

Don’t miss this exciting opportunity- contact us today to arrange an inspection!