SOLD

47 Bayview Road Mornington VIC 3931

3
1
1
330 m2
House

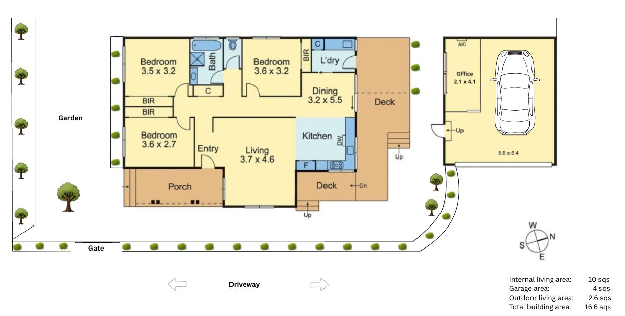
Mornington Home: 3BR, 330m², Outdoor Area, $850K-$920K

Discover your ideal family home in the charming suburb of Mornington! This beautifully maintained property offers the perfect blend of comfort, style, and practicality.

Situated on a generous 330 (approx) square meter block, the spacious 125 square meter floor plan features three inviting bedrooms, each equipped with built-in robes, providing ample storage. The well-designed bathroom and versatile living area create an open and welcoming atmosphere, perfect for relaxing or entertaining guests.

Enjoy modern conveniences with split system heating and air conditioning, ensuring year-round comfort. Stylish floorboards add warmth and elegance throughout the home, while the contemporary kitchen makes meal preparation effortless.

The home also benefits from a partially converted garage space, thoughtfully transformed into a studio space — ideal for hobbies or a rumpus room for the kids.

Step outside to your private outdoor entertaining area and deck, perfect for weekend barbecues or relaxed evenings at home, while the fully fenced yard provides safety and security for children and pets.

Additional features include a remote-control garage with secure parking, a handy storage shed, and a partially converted attic offering valuable extra storage space. The property is also connected to FTTH broadband, ensuring fast and reliable connectivity for both work and leisure.

Located close to local amenities, schools, and parks, this Mornington home offers the perfect lifestyle opportunity. Don't miss your chance to make it yours—schedule a viewing today!

Other properties in ‘Mornington’

VIEW ALL LISTINGS
SOLD
Mornington VIC
​Luxury Coastal Living + Proven Airbnb Success: Your Own Tropical Oasis
28 Booker Avenue Mornington VIC 3931
3
2
2
House
3 months, 4 weeks ago
Mornington VIC
BEAUTIFUL TOWNHOME NEAR MORNINGTON VILLAGE
6 Wilgul Way Mornington VIC 3931
3
2
2
Townhouse