SOLD

19 Tobruk Street Morwell VIC 3840

5
1
1
604 m2
House

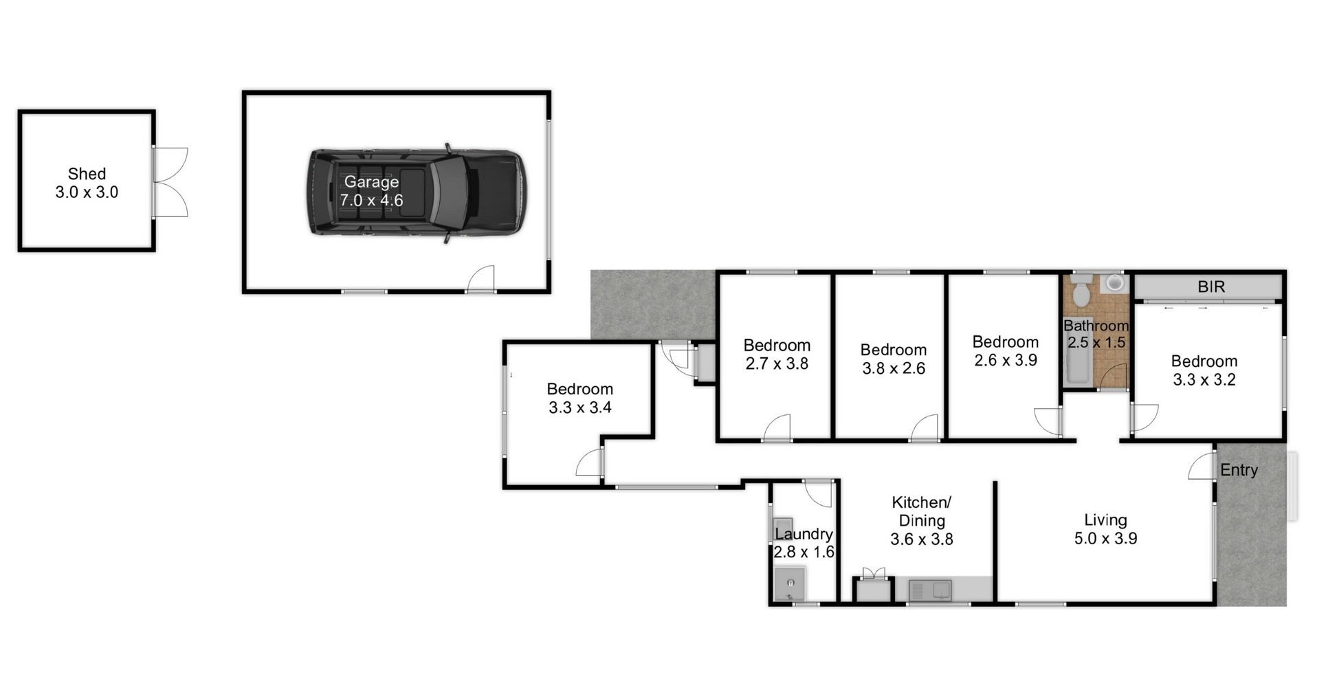
Morwell HUGE Family Home with 5 bedrooms and big backyard

Introducing an exceptional opportunity in Morwell! This spacious family home is perfect for those seeking comfort and convenience. Sitting on a generous 604 sqm block, this property offers ample space for both living and outdoor activities.

The home features 5 comfortable bedrooms with built-in robes, providing plenty of storage for the whole family. The functional bathroom serves the household with ease. The open-plan living area is perfect for relaxing or entertaining guests, complemented by stylish floorboards that add warmth and charm throughout.

Enjoy year-round comfort with reverse cycle air conditioning, ensuring a pleasant interior climate. The property also includes a secure garage for parking and additional storage, along with a fully fenced yard for privacy and safety. An outdoor shed and a courtyard provide great options for gardening, outdoor relaxation, or entertaining.

Located in a desirable Morwell neighborhood, this home offers both convenience and lifestyle appeal. Priced at $425,000, this property is an excellent opportunity for families, investors, or anyone looking to settle in the area. Don’t miss out – contact us today to arrange a viewing!

Other properties in ‘Morwell’

VIEW ALL LISTINGS
SOLD
Morwell VIC
Charming Californian Bungalow with Space, Style and Family Appeal
98 Elgin Street Morwell VIC 3840
4
2
1
House
10 months, 1 week ago
Morwell VIC
Morwell VIC 3840
Address available on request
3
1
2
House
3 months, 2 weeks ago
SOLD
Morwell vic
BRICK TOWNHOUSE ! FREE STANDING TOWNHOUSE NO STRATA
Address available on request
2
1
0
Unit